Abitazione di tipo civile in asta: Giugliano in campania, Via madonna del pantano 115

Trib. di Napoli Nord, Proc. 212/2024, Lotto 1
Salva lotto
Cod. Inserzione: 4523507
  • placeholder image
  • placeholder image
  • placeholder image
  • placeholder image
  • placeholder image
  • placeholder image
  • placeholder image
  • placeholder image
  • placeholder image
  • placeholder image
  • placeholder image
Dati del bene: Abitazione di tipo civile
Abitazione di tipo civile
Descrizione:
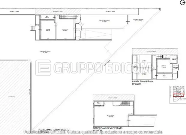
Piena ed intera proprietà di villetta a schiera facente parte del complesso denominato Parco Susy ubicato in Giugliano in Campania (NA) alla Via Madonna del Pantano n.115.La villetta è articolata tra piano seminterrato, piano terra e primo piano ed è contraddistinta con l’interno 4/D. Il piano seminterrato è composto da locale autorimessa con servizio igienico. Il piano terra/rialzato è composto da soggiorno, cucina e servizio igienico oltre a due balconi e due cortili esclusivi. Il piano primo è composto da disimpegno, tre camere da letto, due servizi igienici e ripostiglio oltre a due balconi e lastrico solare
Indirizzo
Via madonna del pantano
Provincia
Napoli
Comune
Giugliano in Campania
Regione
Campania
Nazione
Italia
Tipologia diritto
1/1 di Piena Proprietà
Piano
S1-T1
Vani
7
Sezione Foglio Particella Subparticella Subalterno Subalterno2 Graffato
88 319 2
Dati procedura
Tribunale
Napoli Nord
Procedura nr
212/2024
Rito
Esecuzioni Immobiliari post legge 14 maggio 2005, n.80
Tipologia
immobiliare
Lotto nr
1
Custode
Luigi Rampone
Luigi Rampone
Tel. 3332727221
avv.luigirampone@gmail.com
Delegato alla vendita
Luigi Rampone
Luigi Rampone
Tel. 3332727221
avv.luigirampone@gmail.com
Giudice
Monica Marrazzo
Monica Marrazzo
Pubblicato online il
26/09/2025 00:00
Dati sulla vendita
Data vendita
16/12/2025 - 11:30
Prezzo base
€ 215.000,00
Offerta minima
€ 161.250,00
Valore in aumento in caso di gara
€ 3.000,00
Per partecipare alla vendita
Tipo vendita
Vendita delegata professionista
Termine presentazione domanda
15/12/2025 23:59
Luogo della vendita
La gara verrà svolta in modalità telematica tramite il portale www.astetelematiche.it
Modalità di deposito offerte
presso la Cancelleria Esecuzioni Immobiliari del Tribunale di Napoli Nord
Punti di interesse

Informiamo che i dati pubblicati nella presente scheda vengono trasmessi ed acquisiti dal portale vendite pubbliche nel rispetto del D.M. 5.12.2017 e la successiva pubblicazione delle specifiche tecniche nella G.U. N.16 del 20-1-2018 – che attesta la piena funzionalità dei servizi del portale delle vendite pubbliche. La società non si assume alcuna responsabilità in caso di difformità dei dati trasmessi dal suddetto portale né in relazione alla documentazione ufficiale fornita dagli organi della procedura e/o in relazione alla mancata omissione di dati sensibili come da provvedimento del Garante per la protezione dei dati personali G.U. n. 47 del 25/02/2008 e da normativa GDPR, regolamento (UE) n. 2016/679.

Vuoi partecipare ad un’ asta online o in presenza, ma non sai come fare?

Nessun problema! affidati al nostro team di Consulenti ed Avvocati, seguiranno passo dopo passo nel tuo acquisto in asta.

Scopri tutti i nostri nuovi servizi di assistenza su: