giudiziariagiudiziariaTribunale di MATERAESECUZIONI CIVILI IMMOBILIARIESECUZIONE IMMOBILIARE POST LEGGE 80982022GiudiceValeriaLa battagliafalsefalseDelegato alla venditaOronzoDinisiDNSRNZ72L16F061Pdinisi@studiodinisi.it3471938461truetrue23281761IMMOBILIIMMOBILE COMMERCIALEStrada Comunale Salandra Grottole, 75017 Salandra MT, ItaliaSalandraMateraBasilicataItaliaCategoria C1, consistenza 195 mq. Categoria C1, consistenza 51 mq. Sala ristorante con cucina e servizi, laboratorio-pizzeria in posizione distaccata dal ristorante. Di facile accesso dalla SS 407 Basentana oltre che dalla strada comunale Salandra-Grottole, anche per la presenza della stazione ferroviaria. Gli immobili sono posti al piano terra, sono dotati di finestre per l'illuminazione naturale, scollegata la fornitura di energia elettrica. Terreno qualità uliveto.3009735ALTRA CATEGORIATERRENOStrada Comunale Salandra Grottole, 75017 Salandra MT, ItaliaSalandraMateraBasilicataItaliaTerreno qualità uliveto, classe 1, superficie catastale 44 mq e superficie catastale 1.040 mq. Area circostante riservata ai parcheggi, catastalmente individuati come terreni agricoli.8748186LIBER3009736IMMOBILE COMMERCIALENEGOZI, BOTTEGHEStrada Comunale Salandra Grottole, 75017 Salandra MT, ItaliaSalandraMateraBasilicataItaliaCategoria C1, consistenza 195 mq. Categoria C1, consistenza 51 mq. Sala ristorante con cucina e servizi, laboratorio-pizzeria in posizione distaccata dal ristorante. Di facile accesso dalla SS 407 Basentana oltre che dalla strada comunale Salandra-Grottole, anche per la presenza della stazione ferroviaria. Gli immobili sono posti al piano terra.857481262LIBER2025-12-15T15:00:00SENZA INCANTOSINCRONA MISTAsala aste telematiche, primo piano, aula B, Tribunale di Matera75100MateraMateraBasilicataItalia122.300,0091.725,002.000,002025-12-12T12:00:00sito pubblicitahttps://www.rivistaastegiudiziarie.ithttps://www.rivistaastegiudiziarie.itsito pubblicitahttps://www.canaleaste.ithttps://www.canaleaste.itgestore delle venditehttps://www.garavirtuale.ithttps://www.garavirtuale.itsito pubblicitahttps://www.asteannunci.ithttps://www.asteannunci.itsito pubblicitahttps://www.asteavvisi.ithttps://www.asteavvisi.it2025-09-29
Negozi, botteghe in asta: Salandra, Strada comunale salandra grottole, 75017 salandra mt, italia
Trib. di Matera, Proc. 98/2022,
Lotto 1
Salva lotto
Cod. Inserzione: 2328176
Dati del bene: Terreno
Terreno
Descrizione:
Terreno qualità uliveto, classe 1, superficie catastale 44 mq e superficie catastale 1.040 mq. Area circostante riservata ai parcheggi, catastalmente individuati come terreni agricoli.
Indirizzo
Strada comunale salandra grottole, 75017 salandra mt, italia
Provincia
Matera
Comune
Salandra
Regione
Basilicata
Nazione
Italia
Disponibilita
Libero
Sezione
Foglio
Particella
Subparticella
Subalterno
Subalterno2
Graffato
8
74
8
186
Dati del bene: Negozi, botteghe
Negozi, botteghe
Descrizione:
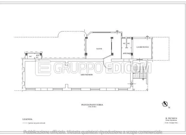
Categoria C1, consistenza 195 mq. Categoria C1, consistenza 51 mq. Sala ristorante con cucina e servizi, laboratorio-pizzeria in posizione distaccata dal ristorante. Di facile accesso dalla SS 407 Basentana oltre che dalla strada comunale Salandra-Grottole, anche per la presenza della stazione ferroviaria. Gli immobili sono posti al piano terra.
Indirizzo
Strada comunale salandra grottole, 75017 salandra mt, italia
Provincia
Matera
Comune
Salandra
Regione
Basilicata
Nazione
Italia
Disponibilita
Libero
Sezione
Foglio
Particella
Subparticella
Subalterno
Subalterno2
Graffato
8
57
4
8
126
2
Dati procedura
Tribunale
Matera
Procedura nr
98/2022
Rito
Esecuzioni Immobiliari post legge 14 maggio 2005, n.80
Tipologia
immobiliare
Lotto nr
1
Giudice
Valeria La battaglia
Valeria La battaglia
Delegato alla vendita
Oronzo Dinisi
Oronzo Dinisi
Cel. 3471938461
dinisi@studiodinisi.it
Valore perizia
292.014,50
Pubblicato online il
29/09/2025 11:35
Dati sulla vendita
Data vendita
15/12/2025 - 15:00
Prezzo base
122.300,00
Offerta minima
€ 91.725,00
Valore in aumento in caso di gara
€ 2.000,00
Per partecipare alla vendita
Tipo vendita
SENZA INCANTO
Termine presentazione domanda
12/12/2025 12:00
Luogo della vendita
TRIBUNALE di MATERA - Via A. Moro, 26 Piano 1° - aula “B” - Sala Aste Telematiche
Modalità di deposito offerte
presso lo Studio del professionista delegato sito in Matera, in via Luigi Einaudi, n. 7, entro le ore 12:00 del giorno lavorativo precedente l’asta
Informiamo che i dati pubblicati nella presente scheda vengono trasmessi ed
acquisiti dal portale vendite pubbliche nel rispetto del D.M. 5.12.2017 e la
successiva pubblicazione delle specifiche tecniche nella G.U. N.16 del
20-1-2018 – che attesta la piena funzionalità dei servizi del portale delle
vendite pubbliche. La società non si assume alcuna responsabilità in caso di
difformità dei dati trasmessi dal suddetto portale né in relazione alla
documentazione ufficiale fornita dagli organi della procedura e/o in
relazione alla mancata omissione di dati sensibili come da provvedimento del
Garante per la protezione dei dati personali G.U. n. 47 del 25/02/2008 e da
normativa GDPR, regolamento (UE) n. 2016/679.
Puoi utilizzare questo modulo per inviare una richiesta al fine di esercitare i tuoi diritti
di
protezione
dei
dati. Le informazioni che fornisci in questo modulo verranno trattate esclusivamente per verificare la
tua
richiesta.
Per ulteriori dettagli su come utilizziamo e proteggiamo le tue informazioni personali,
consulta
la nostra
privacy policy.